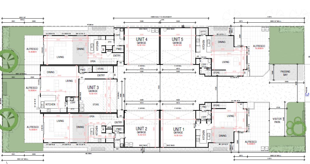
Big and Bold

This property was on and off the market multiple times with multiple agents, initially at a very high price and then it had a contract fall over. We kept a close eye on it as it was a quality site, it just needed to be purchased at the right price. It was both income producing flats as well as a development site. We understand some buyers walked away because they didn't believe the existing flats could be demolished, however, this was researched by us and debunked. The result is a site that our client is in no rush to develop because it has good income, but with potential for 5 grand townhouses with large courtyards and all with double garages through clever design... perfect for the targeted owner occupier market. 

Source: www.realestate.com.au